7 Precise & Free PDF Measuring Tools You Can't Miss
17.4K
1
Do you need to measure the objects in CAD drawings, PDF blueprints or other PDF documents? Finding the appreciate PDF measuring tool saves time and eliminates manual errors.
This guide compares 7 precise and free PDF measuring tools for Windows, Mac, and online use. Whether you're an architect measuring floor plans or a student working with diagrams, discover which tool fits your needs.
Cisdem PDFMaster
A Versatile PDF Measuring Tool with the Highest Precision!
- Measure distance, perimeter, area and angle in PDF with ease.
- Change the scale when measuring a PDF, like units and precision.
- Easy and accurate measurement with just a few clicks.
- Customize measurement results’ color, opacity, stroke and even style.
- Manage your measurement records orderly, view, comment, or delete.
- Other key features: edit, annotate, sign, draw, convert, compress, protect and unlock PDF.
- Available on Windows and Mac.
Free Download macOS 11 or later
Free Download Windows 10 or laterEarlier than macOS 11, click here
Top Choice: Cisdem PDF Measuring Tool
Cisdem PDFMaster is a versatile PDF editor that has a measuring tool. It helps handle digital documents and measure the drawings in a PDF easily and efficiently.
There are 4 precise PDF measuring tools provided by Cisdem PDFMaster to measure distance, perimeter, polygon area and rectangle area. Each measuring tool will give you many options to customize their appearance like color, opacity, width and style. Besides, you can comment on the measurement marks or delete the unwanted ones if needed.
Best of all, the measured results in Cisdem will be completely retained on the PDF pages when you’re done measuring. This can be greatly convenient for users who need to record large amounts of measurement data.
Other Main Features Provided in Cisdem PDFMaster
- Powerful AI features: summarize, rewrite, proofread and translate.
- Edit PDF files in PDFMaster easily like a word processor.
- Make annotations and drawings on the PDF pages.
- Batch convert PDF into/from various file formats.
- Unlock password-protected PDF files.
- Protect PDF with passwords, watermarks, digital signature and more.
- Reduce the size of PDF files in bulk.
- Manipulate PDF pages simply as you want.
- Create fillable PDF forms with various form fields provided.
- Support OCR technology.
How to Measure Distance on PDF Drawings?
- Free download Cisdem PDF measuring tool on your Windows or Mac.
Free Download macOS 11 or later
Free Download Windows 10 or later
Earlier than macOS 11, click here - Upload your PDF by clicking Open Files.
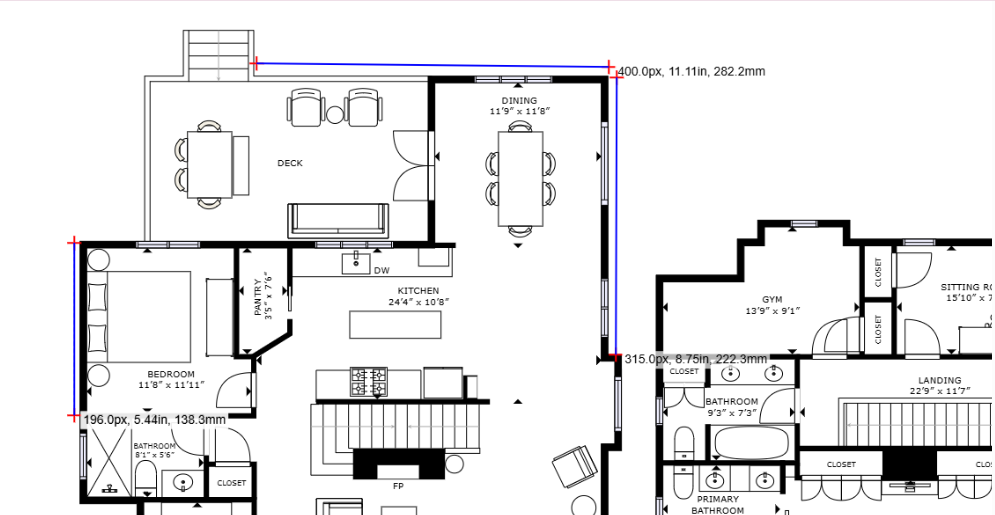
Go to Annotate > Measure. Select the Line tool from the right tool panel to measure the distance between two points in a PDF. ![measure pdf cisdem1]()
- Make adjustments to the border color, opacity, line width, line style, etc. before measuring.
- Click anywhere in the PDF as the start point, move the cursor to the second point and click the mouse button again.
![measure pdf cisdem3]()
- Go to File > Save to complete your measurement.
How to Measure Perimeter in PDF?
- In the Measure menu, select the Multilines tool to calculate the sum of the distances of multiple points.
- Click to set the start point, move the mouse cursor to place the second point, third point, fourth... then double click to place the endpoint.
![measure pdf cisdem4]()
How to Measure Area in PDF?
- Choose Polygon from the Measure menu.
- Click the points of the polygon you want to measure in sequence to frame it.
- Then you'll see the measurement results (both area and length) within the polygon.
![pdf measuring tool cisdem01]()
- (Optional) If you want to measure the area of a rectangle, you can choose Rectangle from Measure menu list, and directly drag your cursor to create a rectangle.
![measure pdf cisdem5]()
How to Change Scale in PDF Measuring Tool?
- After you select a tool from Measure expanded menu, click Display Settings.
- In the new window, you can change the scale ratio as per your requirements.
![pdf measuring tool cisdem03]()
You can check the following table as a reference:
| Drawing scale | Measuring scale |
|---|---|
| 1:20 | 1cm=0.2m |
| 1:25 | 1cm=0.25m |
| 1:50 | 1cm=0.5m |
| 1:100 | 1cm=1m |
| 1:200 | 1cm=2m |
| 1:500 | 1cm=5m |
| 1:1000 | 1cm=10m |
| 1:1250 | 1cm=12.5m |
| 1:2500 | 1cm=25m |
| 1:5000 | 1cm=50m |
| 1:10000 | 1cm=100m |
Also, you can check the YouTube video tutorial to measure PDF on PC.
4 Free PDF Measuring Tool Apps for Windows or Mac
Parts of you may prefer free PDF measuring software due to tight budget, occasional use or other reasons, if so, here are 4 optimal free PDF measuring tools available for you.
#1. Adobe Acrobat Reader (Windows and Mac)
If you are looking for a basic yet workable PDF measuring tool, Adobe Acrobat Reader has got you covered. It is not only a PDF reader, but also lets you take accurate measurement of your floor plans, PDF drawings or other files. Without downloading and paying for Adobe Acrobat Pro, you can measure perimeter, distance and area with this free PDF measuring tool.
Step-by-Step Tutorial on Measuring PDF for Free
- Open Adobe Acrobat Reader on your Windows or Mac.
- Go to Menu > Open to upload your floor plan or other PDF files from your computer or Cloud.
- Choose Measure objects from All tools on the left toolbar.
![measure pdf adobe01]()
- Click Measuring tool. On the right, select one snap type and measurement type before measuring.
![measure pdf adobe02]()
- Click to confirm the starting point and the points passed through, and double-click to end the measurement.
- Select Properties from the right-click menu to adjust the settings.
![measure pdf adobe03]()
- Finally, go back to Menu > Save to download the PDF file you measured.
#2. Preview (Mac Only)
There is good news for Mac users that a default image and PDF viewer -- Preview can be a handy PDF measuring tool for free. With the aid of ruler provided by Preview, users are able to measure the size and margins of rectangular selection in a PDF file without having to print it out.
It is a great option for those who simply need to measure some rectangles, otherwise you’ll have to turn to a professional PDF measuring tool.
How to Use this Free PDF Measuring Tool on Mac?
- Right click on your PDF file and open it with Preview.
- Go to Tools tab on the top > Show Inspector from the drop-down.
![free pdf measuring tool mac01]()
- Hit the Ruler icon in the floating window.
![free pdf measuring tool mac02]()
- Head towards the Tools tab > Rectangular Selection, drag a rectangle as you need on the page, then its measured data will be shown on the Crop window.
![free pdf measuring tool mac03]()
#3. PDF Annotator (Windows Only)
PDF Annotator provides Windows users two separate tools for measurement: One is Measure tool, another is Dimension tool. The Measure tool can measure the distance, perimeter, area and angle.
However, the measurement marks are displayed temporarily so that you can’t save it to the PDF. Meanwhile, the Dimension tool can only measure the distance between two points but the measurement data will be permanently retained on the document.
How to Measure PDF on Windows?
- Upload your PDF file from your local device.
- First select Tool > Measure to activate the measure tool, then go to Tool > Tool Styles, the options you can choose from the drop-down menu are Distance, Perimeter, Area, Angle, Scale and Manage Scales.
![pdf measure annotator1]()
- Select a scale from the list or customize the scale in Manage Sales.
- Choose the tool to measure the distance between two points, a perimeter between points, an area or an angle in your PDF, and finish with ESC or right click.
![pdf measure annotator2]()
Tips:
1. When using the Measure tool, you don’t need to save the file, since all the measurement traces cannot be left on the PDF page.
2. If you only want to measure the distance of two points, select Tool tab and click Dimension to start.
#4. PDF X-Change (Windows Only)
PDF X-Change is a full-featured PDF editor specifically designed for Windows. It has the capabilities of PDF viewing, converting, protecting, etc., as well as PDF measuring. As for its measure feature, 3 types of measuring tool are available: distance, perimeter and area. Still, it gives users much freedom to change the format of the measurement marks on page, like color and opacity.
However, only straight lines or rectilinear shapes can be measured in this program, while angle or arc shapes require the help of other tools.
How to Measure PDF Drawings on Windows?
- Launch the program of PDF-XChange Editor on your PC.
- Go to File tab and click Open to upload the PDF you want to measure.
![pdf measuring tool windows01]()
- Click Comment feature and choose one desired measuring tool.
![pdf measuring tool windows02]()
- Select Format to change the appearance and scale ratio of measurement trace if needed.
![pdf measuring tool windows03]()
Tips: The measurement data (including distance, perimeter, area, scale ratio and precision) will appear at the bottom right of the interface as soon as you click on the measurement trace.
2 Free PDF Measuring Tool Online
In addition to free PDF measuring software, online tools are also a good option to measure PDF for free. They eliminate downloads and work instantly on any device. Below, we showed 2 useful web tools that can measure distances, areas or perimeters.
#1. Foxit PDF Editor
Foxit PDF Editor Online is a cloud-based PDF solution that retains nearly all capabilities of its offline counterpart. The measure toolkit is one of the most powerful parts you can use for free. It lets you calculate the distances, perimeters and areas directly on PDF drawings. Also, it offers multiple options to change the appearance in the sidebar.
However, it really annoyed me that after two or three measurements, the page froze. I can choose the tool as usual, but I can't measure normally. Once I refresh the page, I have to start all the measurements over again.
How to Use Foxit PDF Measuring Tool Online?
- Create an account or sign up with Google Account.
- Choose a PDF from your computer, OneDrive, Box, Dropbox, Google Drive, etc.
![free pdf measuring tool foxit01]()
- Go to Comment > Measure. You can choose to measure the distance, perimeter or area in the toolbar according to your needs.
![free pdf measuring tool foxit02]()
- Once you’ve set the scale ratio on the right interface, you can start your measuring. The result information is in the lower right corner.
![free pdf measuring tool foxit03]()
- Right click on the measurement, then a properties window will pop up where you can make edits to its appearance.
![free pdf measuring tool foxit04]()
- Once you’ve finished, click File > Save File.
#2. APITemplate.io
APITemplate.io is actually an automated PDF generation service, with measurement being one of many operations. It is chosen here because of its easy and fast processing. Unlike common measuring tools, it only allows users to measure the distance between two points, and has no option to save the measured PDF. So it just works as a ruler.
How to Use this Free PDF Measuring Tool Online?
- Type and search “APITemplate.io PDF measure tool” in a browser.
- In the tool page, click Select PDF File to upload your PDF file.
![free pdf measuring tool api01]()
- Your PDF will be displayed directly below. You can adjust its size by clicking the “-” or “+” icon.
- Click to start and end measuring the distance of two points.
![free pdf measuring tool api02]()
How to Choose the Right PDF Measuring Tool?
All of these 7 top-level PDF measuring tools can help users measure the PDF drawings easily, but it doesn’t mean that they fit every workflow. The following 3 critical factors can help you choose the ideal PDF measuring tool:
- Check Operating System Compatibility
Platform compatibility is always the first factor you should consider. Both Windows and Mac users can benefit from multi-platform software like Cisdem PDFMaster and Adobe Acrobat Reader, while web-based tools such as Foxit offer flexibility across various devices. For single-platform software, you need to consider whether the operating system you are running meets the requirements. - Confirm Your Measurement Needs
Basic distance measurements often suffice with free tools like APITemplate.io and Preview, while complex projects requiring perimeters, areas and angle calculations require PDF editor software Cisdem PDFMaster, PDF Annotator and PDF X-Change. They also provide scale adjustments capabilities. - Remain Measurement Records
It is crucial for architects or reviewers to save measurements to the final PDF permanently. Tools like PDF Annotator, Preview and APITemplate.io only display temporary measurement data, but other 4 tools can all retain the data. Among them, Cisdem PDF measuring tool displays the most comprehensive data on the measurements.
Bianca is a senior tech editor and strategist at Cisdem with Over 10 years of experience on PDF related solutions which covers all document editing, annotating, converting and managing etc.
Liam Liu takes charge of the entire PDF product line at Cisdem and serves as the technical approver for all related editorial content. He has deep expertise in PDF and document management technologies and nearly a decade of development experience.

Go to Annotate > Measure. Select the Line tool from the right tool panel to measure the distance between two points in a PDF. 






















Robert R.
Honestly, after trying several tools (including some free ones mentioned), Cisdem PDFMaster satisfied me the most. I work with technical drawings and blueprints constantly, this tool has been a massive time saver by providing several precise measurement tools.